Znovuzrodenie v architektúre

…“zapamätajte si jednu vec, jeden nesporný poznatok, že totiž tradíciu tvorí reťaz všetkých postupných revolučných udalostí z minulosti“… povedal Le Corbusier v roku 1958.

Mohli by sme povedať, že Umelecká škola v Smižanoch je tradičná budova lebo nadväzuje na reťaz postupných „revolučných udalostí z minulosti,“ Smižian, ktoré vytvorili ich charakter. Inak na prvý pohľad nenesie žiadne stopy tradičnej, historickej alebo historizujúcej architektúry. Ale architektúra umeleckej školy v Smižanoch je aktuálne moderná aj tak, že pri hlbšom skúmaní okamžite vidíme odkaz a väzbu , na bezprostredné, slovami ťažko opísateľné, stotožnenie sa s lokálnou identitou, s najvýraznejšími hodnotami architektonických a urbánných tradícií Spiša ktoré ešte tu v troskách zostali.



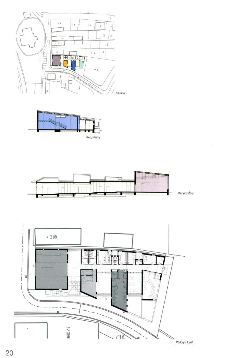
Škola v Smížanoch je v bezprostrednej blízkosti centra obce, hneď vedľa pôvodne stredovekého kostola, na rohu malého námestia a z námestia ústiacej úzkej ulice. Medzi budovou školy a susedným pozemkom je ponechaný úzky asi meter široký voľný pás, tak ako všade v zachovanej tradičnej miestnej zástavbe, pás sa smerom na východ ešte aj ohýba, pôdorys budovy sleduje hranicu pozemku.

Podstatou architektúry školy je aditívne poskladaná hmota zo štyroch farebných hranolov medzi ktorými sú ustúpené presklenné časti s oknami komunikačnej chodby. Niektoré hranoly majú skosené hrany, všetky majú jednoplošné šikmé pultové strechy s miernym sklonom. Hlavná sála je hranol obdĺžníkového pôdorysu, v nej je pevne zakotvené nárožie, ostatné časti sú v pôdoryse kosodĺžníky ktoré majú šikmé strechy tak, že sú spádované smerom od priečelia budovy. Týmto jednoduchým usporiadaním vzniká zvonka dosť komplikovaný dynamický zážitok z ostrých hrán hmoty stavby, hlavne v mieste styku z mierne zošikmenou rovinou strechy. Pri pohľade z tesnej blízkosti od priečelia najprv nevieme jednoznačne zistiť ako a ktoré strany hranola sú vlastne zošikmené. Tvarovanie, členenie striech pokračuje aj nad nárožnou časťou kde je svetlík, tak isto ako všade s pultovou strechou v rovnakom sklone ale opačným smerom. Po krátkom pozorovaní zistíme že dynamika hranolov sa niekde zmierňuje. Jedno miesto je vstup do budovy kde ju zmierňuje vodorovná, dlhá presklenná markíza, ktorá pod šikmou atikou podčiarkuje vstup. Druhé miesto je priečelie zo strany námestia, kde je kľud obrovského presklenného okna, medzi dvomi takmer štvorcovými rovnými plochami priečelia. Okno pôsobí veľmi priaznivo obidvomi smermi. Z vonkajšej strany vyjadruje význam verejnej budovy, na tejto strane sa dynamika hranolov zredukuje do odozvy v dynamike grafiky písaného textu: a r t school, ktorá pôsobí ako logo. Z vnútornej strany je príjemný pohľad na vežu kostola, ktorý podčiarkuje vedomie identity miesta.

Zvonka pomerne komplikovane pôsobiaca budova v interiéri pôsobí kľudom prehľadnosti a čitaťeľnosti vnútorných priestorov. Všetky miestnosti sa otvárajú do dlhej miestami presklennej rovnej chodby, ktorá miernymi rampami sleduje sklon terénu na konci sa rozširuje a presklennou stenou končí, vlastne naznačuje pokračovanie v exteriéri. Z chodby je vidieť do učební cez okná a presklenné časti dverí, takže aj na prázdnej chodbe môžme vidieť, nielen tušiť tajomne pulzujúci život učební.

Na budove nájdeme niekoľko vyriešených detailov, ale žiaľ väčšinou detaily vyriešené nie sú. Pri pohľade zblízka sklamane zistíme, že okenné rámy veľkých okien sú plastové s povrchovou úpravou imitujúcou drevo. S čistými redukovanými vonkajšími tvarmi budovy kontrastuju interiéry, kde sa vonkajšia jednoduchá elegancia stráca v nie práve najkrajšom drevenom obklade a v množstve lištovania. Inak vtipne presklenné dverné krídla majú „pseudohistorizujúcu” profiláciu a vnútorné priestory vo výbere použitých materiálov; škvrnitých obkladov, dlažby aj remeselnej realizácie pôsobí trocha lacným dojmom nenáročného riešenia za minimum peňazí. Škola však napriek týmto nedostatkom interiéru pôsobí veľmi príjemne.

Tím architektov smižanskej školy bol zložený z mladých, dalo by sa povedať začínajúcich aj a zo starších kolegov. Všetci svorne tvrdia, že je to ich spoločné dielo. Môžeme len tušiť, že od mladších kolegov pochádzajú aktuálné, radikálne nové formy ríešenia, lebo nikto iný nevie lepšie precítiť, lepšie spoznať najnovšie dianie v architektúre ako ten kto ju práve spoznáva, iné ako súčasné ani nepozná a niekedy ani nechce poznať – je tak voči najnovšiemu najotvorenejší… Snáď vplyvom starších skúsených kolegov sú tu väzby s prostredím presné určenie merítka (stavba nie je menšia ani väčšia ako tradičné domy v historickej zástavbe). Možno od nich pochádza nepopierateľný odkaz na prostredie v členení, a umiestnení stavby, za ktorým možno tušiť niekoľkoročné skúmanie miesta, pozeranie sa očami architekta, pozeranie sa očami urbanistu, premýšľanie, podvedomé prežívanie užšieho aj širšieho, po stáročia vytváraného prostredia Smižian a Spiša. Smižianska škola je iná od súčasnej slovenskej architektonickej produkcie práve jednoznačne vyjadrenou väzbou s prostredím, na čo dnes často zabúdame, nemáme k tomu cit, nepovažujeme za potrebné, alebo to považujeme za nezlučiteľné s aktuálnymi podobami architektúry.

Ako umelecká škola v Smižanoch tak nejak by mohla vyzerať súčasná nová architektúra Spiša, podobná ostatným kultúrnym regiónom Európy, ak by tu nebolo niekoľko desaťročí spoločenských deformácií, ničenia a úpadku kultúry, architektúru z toho nevynímajúc. Umelecká škola v Smižanoch je aj v corbusierovskom zmysle revolučne nová a tak je možno začiatkom novej tradície, ale tu je nová aj tým, že si v aktuálne novej forme vedela zachovať väzby s prostredím, hoci ide iba o zvyšky toho čo z neho zostalo niekde, už len v kolektívnej pamäti. Preto pri pohľade na toto nové dielo, ak sa zamyslíme nad tým, že tento dnes zaostalý región s ktorým sa tak vzrušujúco stotožňuje, na Slovensku formálne ani neexistuje (neexistuje napriek tomu, že sa tu narodil terajší predseda Slovenskej vlády), kľudne môžeme hovoriť o jeho znovuzrodení v architektúre alebo hoc aj o znovuzrodení architektúry…

Ján Krcho, ARCH 11/2004

1 Le Corbusier, kdysi a potom, Arbor vitae, Praha 2003, str. 28

2 Dušan Burák bol jedným z autorov územného plánu Smižian z roku 1993